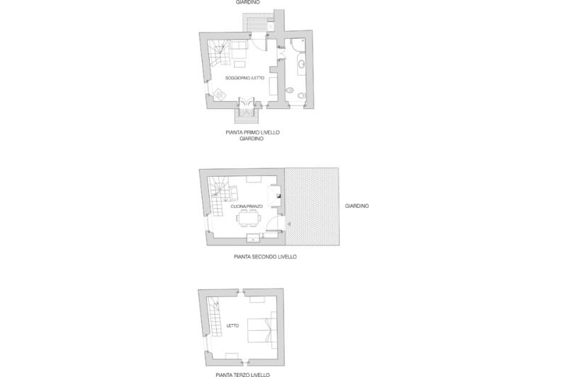
L’Agrturismo L’Ulivo utilizza un edificio estremamente interessante, situato all’interno dell’uliveto e denominato La Torretta.
Si tratta di un’ antica torre di avvistamento, di epoca medievale, trasformata nel corso dei secoli in colombaia e successivamente in abitazione rurale, sottoposta recentemente ad uno scrupoloso restauro.
Il suo grande fascino e la sua “unicità“ derivano dalla straordinaria posizione panoramica, dal mantenimento degli elementi costruttivi originali , dalla disposizione verticale degli ambienti, dalla disponibilità di spazi esterni, dalla comodità di accesso alla piscina.
Dispone di una camera doppia, di una cucina con camino, di un soggiorno letto, di un bagno con doccia; tutti gli ambienti sono arredati con mobili umbri.








